岩板是由天然石料和无机粘土经特殊工艺窑烧制而成,是目前世界上最薄,超轻、超耐高温、吸水率极低最大规格的瓷质装饰板材,在建筑/室内装饰广泛应用。




岩板的规格从1200×2400mm到1600×3200mm都是市面上常见的尺寸,超大规格的岩板板材对安装工艺要求相对来说要高很多。
接下来,就来谈谈岩板安装工艺上的问题。
2.4m以下墙面,适合使用金属角片螺丝固定+胶粘做法;超过2.4m的以上墙面,安全考虑建议使用干挂做法。
01
金属角片螺丝固定+胶粘
(墙面做法)
2.4m以下墙面,适合使用金属角片螺丝固定+胶粘做法;超过2.4m的以上墙面,安全考虑建议使用干挂做法。
在岩板上加粘不锈钢角片,胶粘剂铺贴在墙上后,在岩板上不锈钢角片孔位上用手电钻上好金属螺钉固定,达到双重稳固的效果。

根据现场施工情况做粘贴试验,结合好厂家专业建议,还可以采用其它施工方法,因具体项目而异:


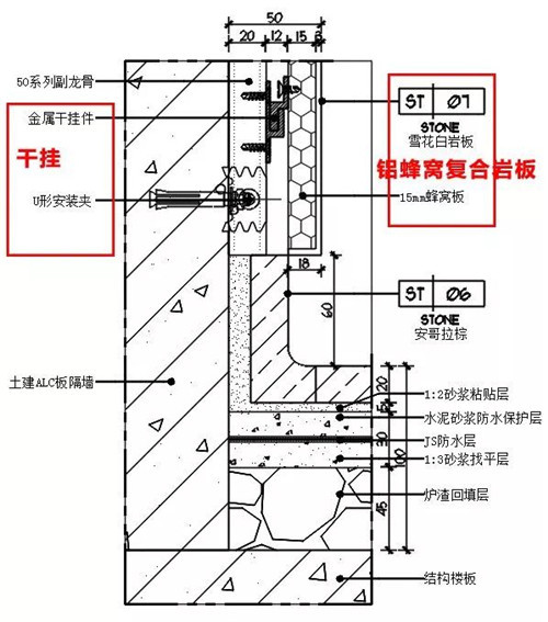
02
铝蜂窝复合岩板干挂安装
(墙面做法)
铝蜂窝复合,主要可以增强岩板抗折和可连接性,能大幅度降低大规格板重量,干挂安装同一般石材干挂类似。





03
岩板胶粘
(地面做法,岩板安装单位建议做法)
岩板地面施工普遍采用胶粘剂铺贴,厂家建议使用专用的岩板安装器械工具,配图的胶粘剂产品,可以很好解决岩板空鼓、安装不稳定等问题。


岩板铺贴工艺流程:基层处理→弹线分格→胶粘剂制备→胶粘剂施工→大岩板背涂→大岩板铺贴→振实平整→找平器辅助调整平整度→表面清洁及保护→填缝处理
基面处理:清楚除基层浮灰,以免会影响瓷砖胶的粘合度。

调制瓷砖胶:将瓷砖胶与水4:1配置,用灰勺搅拌至润涓均匀,无明显块状或糊状结块,搅拌后的浆料静置5-10分钟后再稍加搅拌1-2分钟即可使用。

涂抹瓷砖胶:在地面均匀铺上一层瓷砖胶,形成半干的一层,再次用瓷砖胶填平表面凹凸处,厚度为0.5CM左右;适当条件下,可同时将瓷砖胶均匀地抹在瓷砖背面,要求瓷砖胶涂抹饱满。


搬运铺贴:用三孔玻璃吸工具平抬大板平移施工位置,放置到铺好的瓷砖胶基面上,至少需要两名工人进行搬运,面积更大的需要使用移动架搬运。


铺平压紧:将岩板平整铺贴基层上,橡胶锤将岩板拍实。用橡胶锤把砖面敲平整的同时,以靠尺测量,确保瓷砖铺贴水平。

找平处理:在已定位好的大板边缘周围,每60cm左右插入找平器底座,检验平整后插入找平楔子并夹紧找平器,调整相邻大板的表面平整度,并将大板间隙调整为2mm左右,以便后续美缝剂处理。



空鼓检查:铺贴一小时后,可用小锤轻敲砖面,检查是否出现空鼓现象,铺贴施工结束24小时后,可进行嵌缝施工。

板面清洁:铺贴施工结束24小时后,清理找平器并进行填缝施工,填缝应选用柔性或弹性材料填充。填缝剂固化后,用清洁毛青清理多余的固化剂,保持板面清洁。



图文来源:岩板头条

- END -